物件概要
物件一覧トップへ戻る

徳庵中古マンション

価格2,180万円




    南東向き!!  9階!!




       
          

マンション名 ネバーランド徳庵駅前
所在地 東大阪市稲田上町1丁目
交通 JR学研都市線徳庵駅歩1分
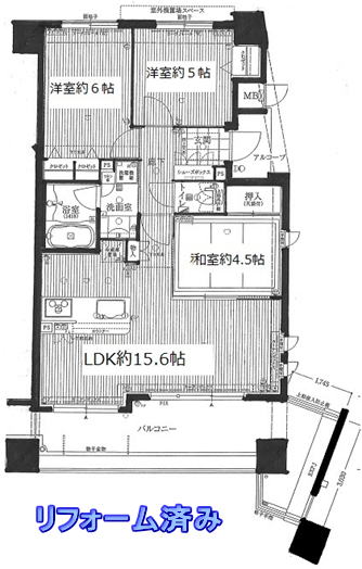
専有面積 66.62平方メートル
バルコニー 17.18平方メートル
構造 鉄筋コンクリート造地上10階建
管理会社 エヌエス管理
事業主 鞄本エスコン
施工会社 大豊建設
建築 平成17年12月
エレベーター 9人乗り1基
引渡 即時
取引態様 媒介


掲載物件以外にも多数ございますので、物件をお探しの方はお気軽にご相談ください。


三和不動産販売
三和地所グループ 三和不動産販売
〒574-0033 大阪府大東市扇町5-18 TEL 072-806-0011
FAX 072-806-0017 E-mail info@sanwa-fh.com
営業時間9:00〜18:00 水曜日定休





Copyright(c) 三和不動産販売. All Rights Reserved.